Resistencia y precisión: El mecanismo de rodadura con doble rodamiento a bolas de alta precisión, garantiza un deslizamiento de las hojas suave y preciso, soportando más de 10.000 ciclos sin desgaste alguno.
Ajuste y compensación de altura: Perfil de compensación capaz de absorber tolerancias de obra hasta 30mm, incluso con el cerramiento ya montado.
Posicionador: Sistema modular sencillo y eficaz para posicionar las hojas en su posición de apertura, con tope ajustable.
Seguridad funcional: Pomo con pestillos para apertura fácil de la hoja fija, tanto desde el interior como desde el exterior, gracias al accionamiento de un fino cable de acero inoxidable.
Ajuste en anchura: Los expansores laterales absorben tolerancias de obra gracias a su regulación, integrándose, limpiamente, en al estructura del edificio.
Microventilación: Para una ventilación controlada en dos posiciones.
Seguridad y confort: Cerradura imitación acero inoxidable, de fácil manejo y protección antirobo.
Ausencia de obstáculos: La guía inferior empotrada, facilita el paso a su terraza sin obstáculo alguno. El machimbrado de los terminales de las hojas garantiza su seguridad.
Ejemplos de configuraciones visto en planta
Ejemplos de configuraciones con marco inferior empotrado o superpuesto.
Ejemplos de configuraciones con distintos remates laterales.
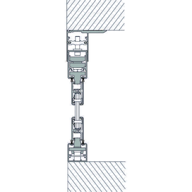
Sección vertical
